Ático exclusivo con vistas despejadas a la iglesia de Diego de León
Tu hogar
276 metros cuadrados completamente reformados y amueblados. Listo para entrar a vivir.
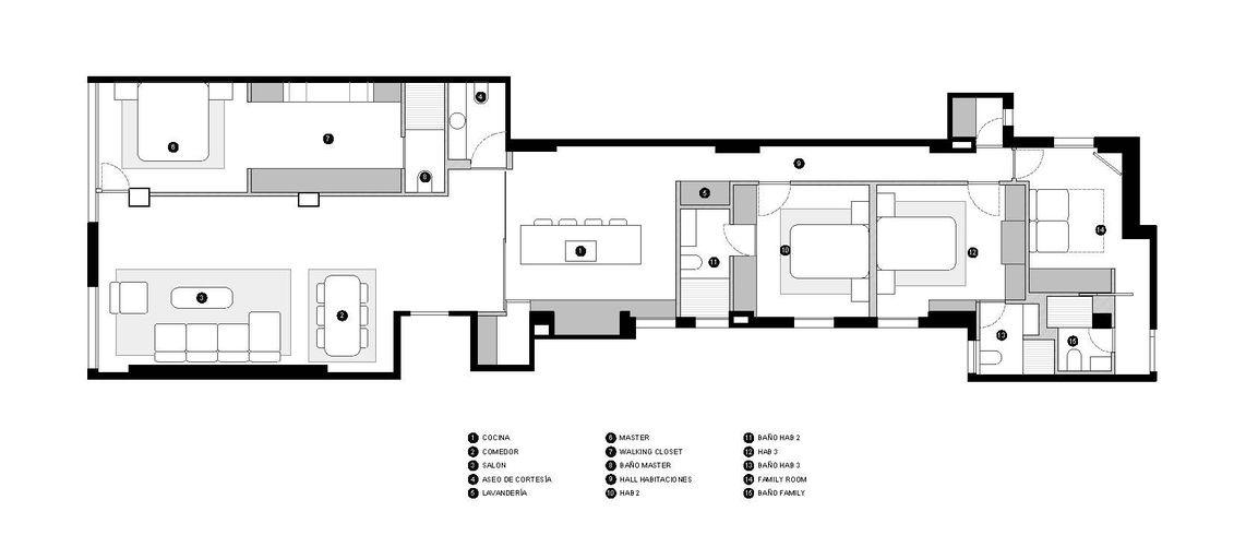
La distribución

3 habitaciones - 4.5 baños
Pide el plano detallado en tu visita con arquitecto.
Ubicación
La gran avenida de Madrid como dirección personal. Vivir en Castellana es tener a un lado el centro financiero y al otro los mejores espacios verdes de la ciudad. Prestigio, conectividad y vistas que no se encuentran en otro lugar.
La garantía Sophiq
Sophiq es propietario de esta vivienda. No somos intermediarios.
La propiedad está completamente saneada. Auditoría legal y técnica completada.
Reforma integral completada con materiales premium. Solo tienes que entrar.
Materiales seleccionados por nuestro equipo de interioristas. Acabados de primera calidad.
Garantía de reforma incluida. Sin costes ocultos ni sorpresas.
Descubre tu hogar
No es una visita convencional. Te acompaña un asesor de Sophiq y un arquitecto que te mostrará todas las posibilidades en el espacio.
Al enviar este formulario aceptas nuestra política de privacidad. Tus datos serán tratados de forma confidencial y nunca compartidos con terceros.