Ático señorial en Recoletos con terraza de 48 m² y trastero
El lienzo
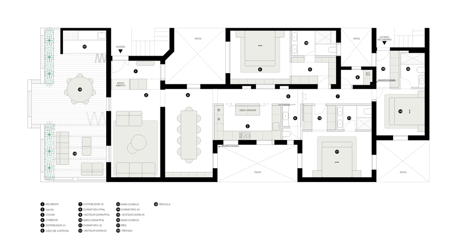
242 metros cuadrados de posibilidades en una finca de 1920. Sin distribuciones impuestas. Sin decisiones irreversibles. Solo estructura, luz natural y el potencial de crear exactamente el hogar que imaginas.
Visualiza las posibilidades
Tú eliges
Estas son las propuestas de nuestro equipo de arquitectos. Punto de partida, no destino final. Tu proyecto puede ser cualquiera de estas o algo completamente nuevo.

3 habitaciones - 4 baños
Pide el plano detallado en tu visita con arquitecto.
Ubicación
El corazón del Madrid más elegante. Entre el Paseo de Recoletos y la Puerta de Alcalá, un barrio que respira historia, cultura y sofisticación en cada esquina. Residir aquí es vivir en primera fila del Madrid que todos admiran.
La garantía Sophiq
Sophiq es propietario de esta vivienda. No somos intermediarios.
La propiedad está completamente saneada. Auditoría legal y técnica completada.
Verás las posibilidades del espacio durante la visita junto a un asesor de Sophiq y un arquitecto.
Red validada de arquitectos, interioristas y constructores. Tú decides si reformas con nosotros o con tu equipo.
Si reformas con Sophiq, el presupuesto es fijo y la fecha de entrega garantizada.
La transformación
Nuestro ecosistema de profesionales validados acompaña cada fase del proyecto. Tú decides si reformas con nosotros o con tu propio equipo.
El arquitecto convierte tus ideas en un proyecto ejecutivo. Planos, materiales, instalaciones y presupuesto detallado.
Gestionamos toda la tramitación con el Ayuntamiento. Licencias de obra, certificados técnicos y permisos necesarios.
Constructora validada ejecuta el proyecto con precio cerrado y fecha de entrega garantizada. Seguimiento digital en tiempo real.
Tu hogar terminado y listo para vivir. Acta de entrega, garantías y documentación completa.
Forma Prima desafía la uniformidad arquitectónica, explorando el equilibrio entre contrastes como luz y sombra, curvas y líneas ortogonales, o rusticidad y pulcritud. A través de esta tensión controlada, crean espacios que estimulan los sentidos y generan experiencias arquitectónicas memorables, donde diversidad y cohesión se fusionan en perfecta armonía.
SO Arquitectura es un estudio “boutique” de arquitectura e interiorismo con experiencia en el ámbito nacional e internacional. “Apostamos por espacios conscientes, sostenibles, cálidos y llenos de luz, que invitan a la adopción de un ritmo de vida más pausado.”
Descubre este lienzo
No es una visita convencional. Te acompaña un asesor de Sophiq y un arquitecto que te mostrará todas las posibilidades en el espacio.
Al enviar este formulario aceptas nuestra política de privacidad. Tus datos serán tratados de forma confidencial y nunca compartidos con terceros.